Profile
Signature Projects
Meta Projects
Commercial Projects
Speculative Projects
Contact
FUNHOUSE.DESIGN
FUN. EXPERIENTIAL. INNOVATIVE.
Profile
Signature Projects
Meta Projects
Commercial Projects
Speculative Projects
Contact
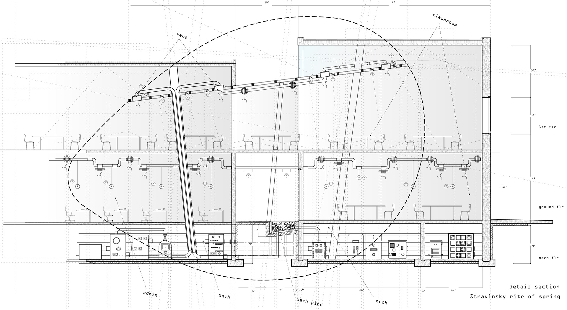
Zchool
Houston, Texas, USA
A Speculative Project on Robots and Teletubbies.
↑
Back to Top